Newel:
verkauft ! Butzweiler: Großzügiges Anwesen mit traumhafter Fernsicht und Einliegerwohnung
Objekt-Nr.: BWR2020324

Straßenansicht mit Einfahrt und Garagen

Wohnen mit Aussicht

Essen mit Ausblick

Essen mit Blick ins Wohnzimmer

Wohnen Essen mit Aussicht

Blick vom Balkon mit Einfahrt und Garage

Treppe

Gäste-WC mit Fenster

Küche mit Blick zum Esszimmer

Kind 2

Kind 1

Schlafen mit Bad Ensuite und Einbauschrank

Ensuite Bad

Kinderbad

Dusche im Kinderbad

Hauseingang mit Wohnungseingängen

ELW Wohnen Essen

ELW Schlafen

ELW Bad

Arbeiten mit Zugang zur Terrasse

Kachelofen im Arbeiten

umlaufende Terrasse und Aussicht

Giebel mit Naturschiefer

Teil des Gartens mit Häuschen

Rückseite

























Preis:
Preis auf Anfrage
Wohnfläche ca.:
225 m²
Grundstück ca.:
780 m²
Zimmeranzahl:
8
Willkommen in Ihrem neuen Zuhause in der bezaubernden Bergstraße in Newel-Butzweiler! Dieses einzigartige Einfamilienhaus mit Einliegerwohnung bietet Ihnen den perfekten Ort zum Leben, Arbeiten und Entspannen.
Das Haus thront majestätisch auf einem aufsteigenden Grundstück und beeindruckt mit einer großzügigen Einfahrt, zwei Außenstellplätzen und einer geräumigen Doppelgarage. Das terrassierte Grundstück ist nicht nur ästhetisch ansprechend, sondern auch funktional gestaltet.
Im Erdgeschoss erwartet Sie eine frisch renovierte Einliegerwohnung, welche zwei Zimmer, eine kleine Küche, ein stilvolles Bad sowie einen praktischen Abstellraum umfasst.…
Die überdachte Terrasse der Einliegerwohnung lädt zu einem gemütlichen Frühstück im Freien ein, während Sie die frische Morgenluft und die traumhafte Aussicht genießen.
Das Herzstück des Hauses bildet die Hauptwohnung, welche sich über zwei Etagen erstreckt. Lassen Sie sich vom hellen und luftigen Wohn- und Esszimmer verzaubern. Große Fensterfronten öffnen den Blick auf eine malerische Landschaft, die sich vor Ihnen erstreckt, während Sie auf dem Balkon verweilen und den Anblick genießen. Die gemütliche Küche lädt zum Kochen ein. Ein Arbeitszimmer mit Zugang zur Terrasse und zum Garten bietet den idealen Rückzugsort zum konzentrierten Arbeiten und Empfangen von Geschäftspartnern. Ein Gäste-WC, eine Garderobe und eine praktische Speisekammer runden das Angebot im ersten Geschoss ab.
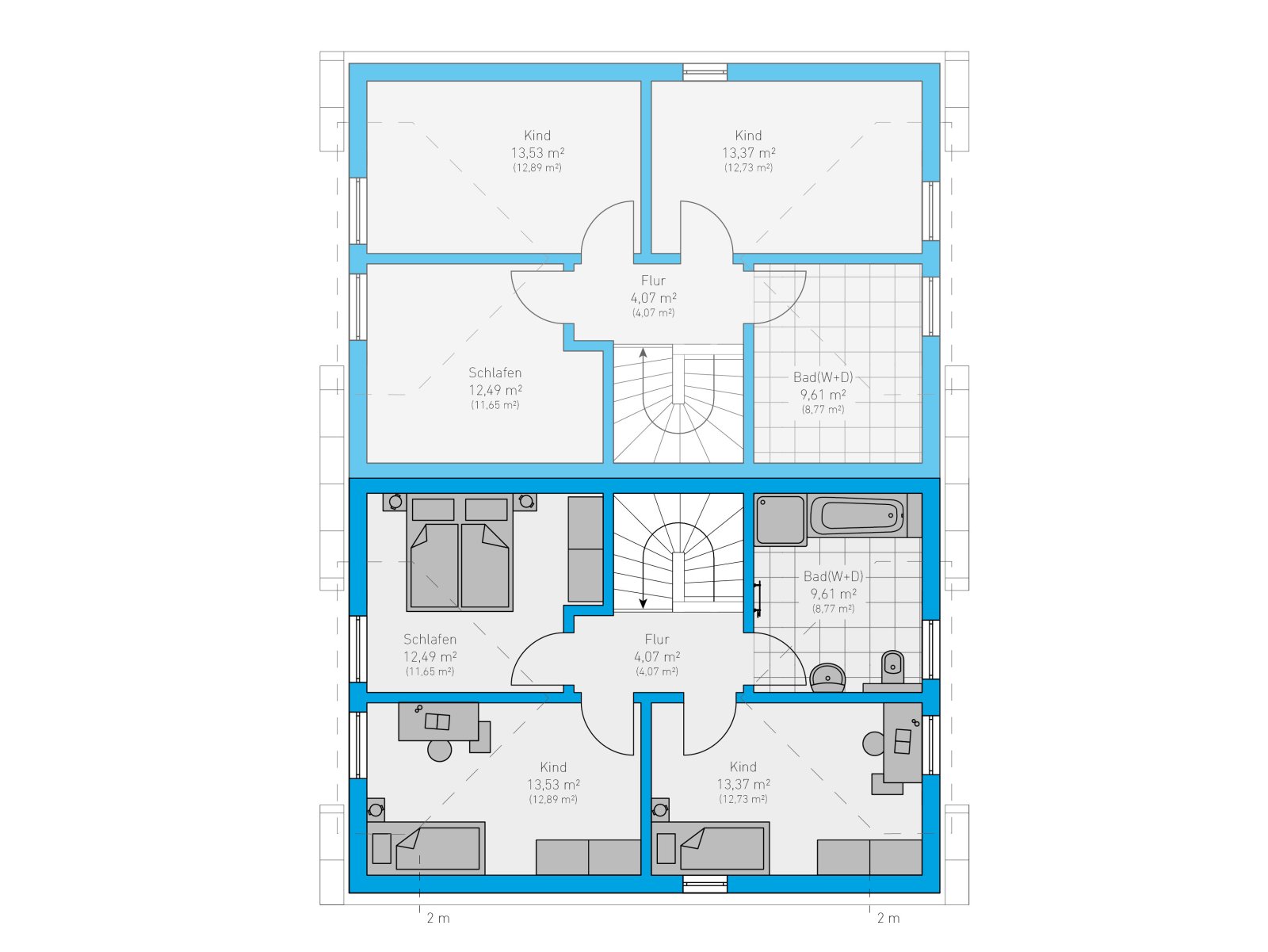
Im Dachgeschoss finden Sie zwei charmante Kinderzimmer, ein liebevoll gestaltetes Kinderbad mit luxuriöser Dusche sowie einen geräumigen Hauswirtschaftsraum mit reichlich Stauraum. Das Elternschlafzimmer bietet mit seinem großen Einbauschrank und dem stilvollen Ensuite-Bad eine Oase der Ruhe und Entspannung.
Die Bäder des Hauses verfügen alle über Tageslicht und sind zeitlos sowie modern gestaltet. Die Einliegerwohnung bietet zudem ein Bad mit bodentiefer Dusche und Sitzbank, welches höchsten Komfort verspricht.
Große Glasflächen durchfluten sämtliche Räume mit Tageslicht und verleihen dem Haus eine besonders helle und freundliche Atmosphäre. Das Arbeitszimmer im ersten Geschoss punktet zusätzlich mit einem funktionierenden Kachelofen, der behagliche Wärme spendet.
Der Garten lädt zu erholsamen Momenten ein, sei es beim Sonnenbaden auf dem Rasen, beim Lesen eines Buches unter dem Schatten eines Baumes oder beim Grillen mit Freunden und Familie auf der Terrasse.
Die Lage des Hauses bietet eine perfekte Kombination aus Ruhe und dennoch guter Verkehrsanbindung. Einkaufsmöglichkeiten, Schulen und öffentliche Verkehrsmittel sind schnell erreichbar. Die umliegende Landschaft lädt zu ausgedehnten Spaziergängen und Wanderungen ein.
Dieses Einfamilienhaus mit Einliegerwohnung vereint modernen Wohnkomfort mit einer traumhaften Lage und hochwertiger Ausstattung. Nutzen Sie die Gelegenheit und vereinbaren Sie noch heute einen Besichtigungstermin!
Haustyp: Einfamilienhaus
Etagenanzahl: 3
Provisionspflichtig: ja
Provision: 3,57% inkl. 19% MwSt.
Küche: Einbauküche
Bad: Dusche, Fenster
Anzahl Schlafzimmer: 4
Anzahl Badezimmer: 3
Terrasse: 2
Einliegerwohnung: ja
Gäste-WC: ja
Garten: ja
Dachboden: ja
Kamin: ja
Umgebung: ruhige Gegend, Wohngegend
Anzahl der Parkflächen: 2 x Außenstellplatz; 2 x Garage
Ausblick: Fernblick
Letzte Modernisierung/ Sanierung: 2022
Qualität der Ausstattung: normal
Baujahr: 1978
Verfügbar ab: nach Absprache
Bodenbelag: Fliesen, Parkett, Stein
Zustand: gepflegt
Energieklasse: BEA
Heizung: Zentralheizung
Energieausweistyp: Energieausweis liegt zur Besichtigung vor
Bei Abschluss eines Kaufvertrages wird eine Vermittlungs-/ Nachweisprovision in Höhe von 3,57 % inklusive 19 % Mehrwertsteuer auf den Kaufpreis vom Käufer fällig.
Die von uns gemachten Informationen beruhen auf Angaben des Verkäufers/der Verkäuferin bzw. des Eigentümers/der Eigentümerin. Für die Richtigkeit und Vollständigkeit der Angaben kann keine Gewähr bzw. Haftung übernommen werden. Ein Zwischenverkauf und Irrtümer sind vorbehalten.
Das könnte Ihnen auch gefallen
STOCKINGER IMMOBILIEN
Herr Matthias Stockinger
Im Weerberg5
54329 Konz
Mobil: +49 173 6252160
54309 Newel


































