Langenfeld (Rheinland):
Maisonette mit Traumformat – zwei Kamine, Balkon im Terrassenstil und ein Wohnkonzept mit Seltenheitswert
Objekt-Nr.: SILFOG260408

Eingangsbereich mit beidseitigem Kamin

Wohnen mit Kamin und Blick in die Wohndiele

Diele mit beidseitigem Kamin

Zimmer 2 mit kleinem Austritt

Eingangsbereich mit beidseitigem Kaminofen

Wohnen und Essen mit beidseitigem Kamin

Leseecke unter der Treppe

TV-Zimmer 1

TV-Zimmer

Schlafzimmer DG

Zimmer DG

Zimmer 1

Bad mit Wanne DG

Bad DG

Bad DG

Küche

Küche 1

Duschbad 1.OG

großer Balkon im Terrassenstil

Balkonbereich vor der Küche

Essen

Eingang mit Einfahrt und Tor

Garten

Front von der Einfahrt

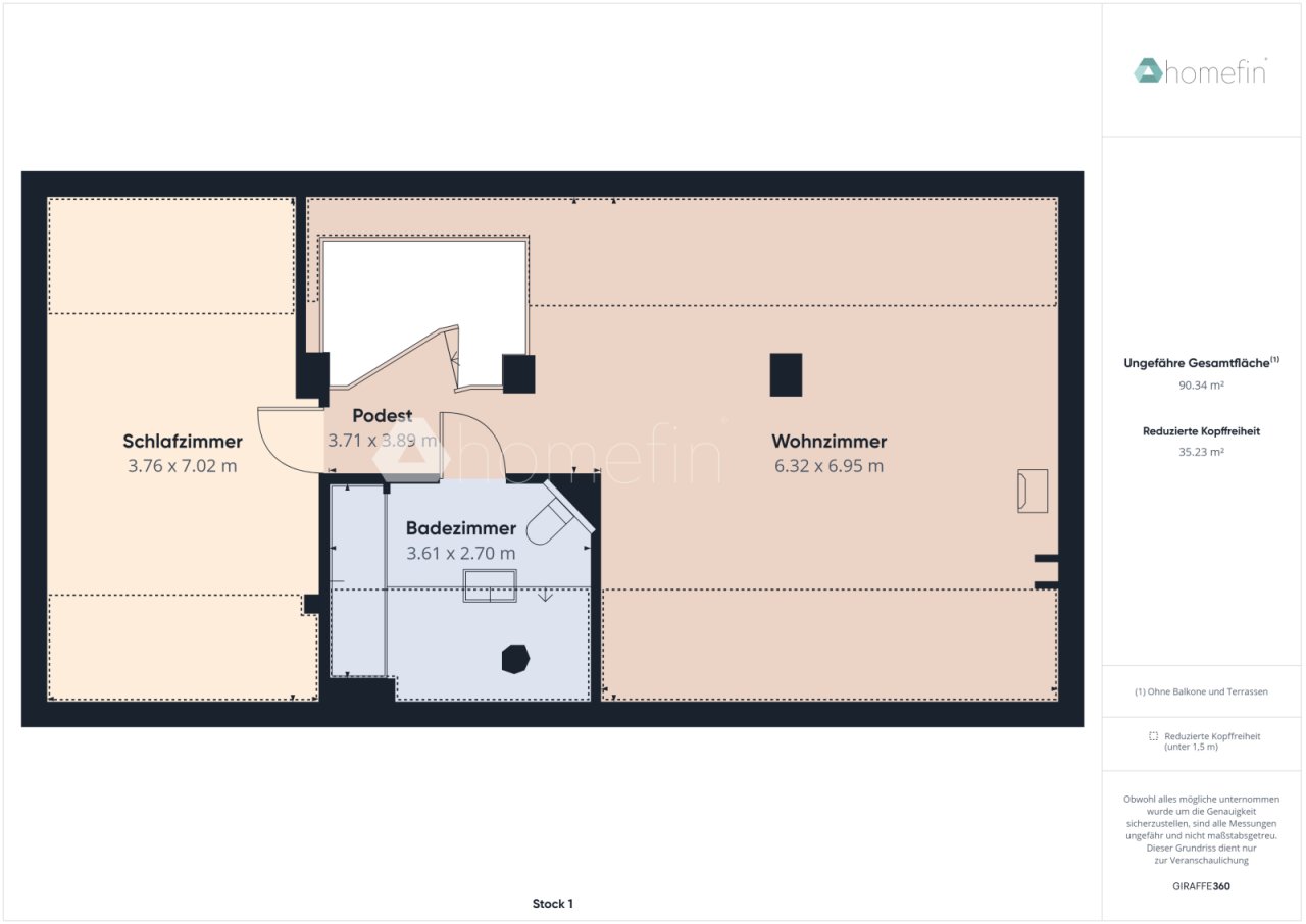
Grundriss OG

Grundriss DG


























Preis:
474.500 €
Wohnfläche ca.:
185 m²
Zimmeranzahl:
5
Es gibt Wohnungen, die gefallen. Und es gibt Wohnungen, die sofort Eindruck hinterlassen.
Diese Maisonettewohnung über das 1. Obergeschoss und das ausgebaute Dachgeschoss gehört eindeutig zur zweiten Kategorie. Sie vereint Großzügigkeit, architektonische Raffinesse und eine Atmosphäre, die sofort hängen bleibt. Auf insgesamt ca. 185 m² Wohnfläche – wobei die Schrägen bereits berücksichtigt und abgezogen sind – entfaltet sich hier ein Zuhause mit außergewöhnlichem Raumangebot auf zwei Ebenen. Zwei Kamine, ein großer Balkon im Terrassenstil, ein weiterer kleiner Balkon, stilvolle Bäder, hochwertige Bodenbeläge und viel Tageslicht machen diese Wohnung zu einem Angebot, das weit über das Gewohnte hinausgeht.…
Schon die erste Ebene empfängt mit einer großzügigen Diele und einer eindrucksvollen Raumwirkung. Ein besonderes architektonisches Highlight ist der raumverbindende, beidseitige Designkamin, der Eingangs- und Wohnbereich auf elegante Weise miteinander verbindet und der Wohnung vom ersten Moment an eine außergewöhnliche Ausstrahlung verleiht. Solche Details machen aus schönen Räumen echte Lieblingsorte.
Der Wohnbereich auf dieser Etage präsentiert sich offen, hell und einladend. Große Fensterflächen holen viel Tageslicht ins Innere und verleihen den Räumen über den ganzen Tag hinweg Lebendigkeit. Hier lässt sich der Alltag ebenso entspannt wie stilvoll leben: morgens ruhig in den Tag starten, nachmittags durchatmen, abends Gäste empfangen und den Kamin als stimmungsvollen Mittelpunkt genießen. Der anschließende Essbereich fügt sich harmonisch in dieses Konzept ein und schafft einen fließenden Übergang zwischen Wohnen, Genießen und Zusammensein.
Die Küche zeigt sich großzügig, hochwertig und angenehm funktional. Sie bietet sehr gute Arbeitsflächen, viel Stauraum und eine klare Struktur, die das tägliche Kochen komfortabel macht. Alles ist stimmig aufeinander abgestimmt und unterstreicht den wertigen Gesamteindruck.
Ein weiterer besonderer Bereich befindet sich hinter der markanten Wendeltreppe. Dort öffnet sich ein ruhiger, offener Platz, der wie geschaffen ist für einen Sessel, gute Bücher und eine kleine Bibliothek. Diese Ecke verleiht der Wohnung zusätzliche Tiefe und schafft einen Rückzugsort mit besonderem Charme. Von hier aus gelangt man auf den großen Balkon im Terrassenstil. Mit seiner großzügigen Fläche fühlt er sich fast wie eine zusätzliche Wohnebene im Freien an. Frühstück in der Sonne, ein Abendessen unter freiem Himmel oder entspannte Stunden mit Blick ins grüne Umfeld – dieser Außenbereich bringt eine Qualität ins Wohnen, die man sofort schätzt. An einem weiteren Zimmer sorgt ein kleiner Balkon beziehungsweise Austritt für noch mehr Licht, Luft und Offenheit.
Auf der ersten Ebene stehen außerdem zwei gut geschnittene Zimmer zur Verfügung, die sich flexibel nutzen lassen – als Schlaf-, Kinder-, Arbeits- oder Gästezimmer. Gerade diese Vielseitigkeit macht die Wohnung für unterschiedliche Lebensmodelle äußerst attraktiv. Hinzu kommt ein stilvolles Duschbad, das mit seiner klaren Gestaltung und hochwertigen Ausstrahlung perfekt zum Charakter der Wohnung passt.
Über die prägnante Wendeltreppe gelangt man ins ausgebaute Dachgeschoss – und dort entfaltet die Wohnung noch einmal eine ganz eigene Qualität. Diese Ebene wurde 1996 ausgebaut und präsentiert sich offen, großzügig und außergewöhnlich wohnlich. Große Dachflächenfenster bringen viel Licht ins Haus und schaffen zusammen mit den weiten Flächen und den hochwertigen Böden ein Raumgefühl, das in dieser Form selten ist. Seit 2024 ist das Dachgeschoss zudem vollständig mit Klimaanlagen ausgestattet, was den Wohnkomfort zusätzlich deutlich erhöht.
Besonders eindrucksvoll ist der große Wohnbereich im Dachgeschoss. Er bietet reichlich Platz für Lounge, TV, Lesen, Rückzug oder stilvolle Abende in entspannter Atmosphäre. Der zweite Kamin verleiht auch dieser Ebene eine starke, wohnliche Präsenz und macht den Raum zu einem Ort, an dem man sofort bleiben möchte. Im Zusammenspiel mit dem Licht von oben und den großzügigen Flächen entsteht hier ein Bereich mit echter Lieblingsplatz-Qualität.
Hinzu kommen ein weiteres großzügiges Schlafzimmer sowie ein Bad, das mit seiner extravaganten Gestaltung sofort ins Auge fällt. Die markanten blauen Mosaike, die Wanne unter den Dachflächenfenstern und die besondere Inszenierung des Raums verleihen diesem Bereich beinahe Spa-Charakter. Das Bad im Dachgeschoss wurde im Jahr 2010 neu errichtet und unterstreicht den individuellen Stil dieser Wohnung auf eindrucksvolle Weise.
Auch die hochwertigen Bodenbeläge tragen maßgeblich zum starken Gesamteindruck bei. Parkett, Holz- und Fliesenflächen greifen harmonisch ineinander und verleihen den Räumen eine gepflegte, stilvolle und wertige Ausstrahlung. Gemeinsam mit den großen Fensterflächen, den Dachflächenfenstern und den architektonischen Besonderheiten entsteht eine Wohnung, die zugleich hell, großzügig und charakterstark wirkt.
Auch technisch präsentiert sich die Immobilie auf überzeugendem Niveau. Eine Kernsanierung erfolgte in den Jahren 1996 bis 2004. Die Fenster wurden in mehreren Etappen modernisiert, unter anderem zwischen 2000 und 2004 sowie erneut im Jahr 2023. Hervorzuheben sind dabei die neu eingebauten Dachflächenfenster und die dreifach verglasten Balkontüren aus 2023. Die Elektrik wurde 1996 und erneut 2023 modernisiert. Im Jahr 2022 wurden Drainage sowie Kellerabdichtung inklusive Dämmung erneuert. 2025 kam eine neue Brennstoffzellenheizung mit Stromerzeugung hinzu. So verbindet diese Wohnung ihren außergewöhnlichen Charakter mit einer technischen Basis, in die bereits umfassend investiert wurde.
Diese Maisonette ist ideal für Menschen, die Wohnqualität bewusst wählen. Für Paare, die Großzügigkeit, Stil und besondere Wohnatmosphäre genießen möchten. Für Familien mit Kindern, die sich ein Zuhause mit hellen Räumen, viel Platz und einem stimmigen Raumgefühl wünschen. Für Käufer, die Wohnen und Arbeiten stilvoll miteinander verbinden möchten. Und für alle, die ein Zuhause suchen, das Atmosphäre ausstrahlt und sich klar vom Gewohnten abhebt.
Abgerundet wird das Angebot durch einen zur Wohnung gehörenden Stellplatz, der den Komfort im Alltag zusätzlich erhöht.
Am Ende liegt genau darin die Stärke dieser Immobilie: Sie bietet weit mehr als Wohnfläche auf zwei Ebenen. Sie schenkt Licht, Raum, Charakter und das seltene Gefühl, in einer Wohnung angekommen zu sein, die Tag für Tag begeistert.
Wohnungstyp: Maisonette
Etage: 1
Etagenanzahl: 3
Provisionspflichtig: ja
Provision: 3,57% vom Kaufpreis inkl. MwSt. z.Z. 19%
Küche: Einbauküche
Bad: Dusche, Wanne, Fenster
Anzahl Schlafzimmer: 3
Anzahl Badezimmer: 2
Balkon: 2
Terrasse: 1
Gäste-WC: ja
Kamin: ja
Keller: Abstellraum
Klimaanlage: ja
Als Ferienwohnung geeignet: ja
Anzahl der Parkflächen: 1 x Außenstellplatz
Letzte Modernisierung/ Sanierung: 2025
Qualität der Ausstattung: gehoben
Baujahr: 1962
Bezugsfrei ab: sofort
Bodenbelag: Fliesen, Parkett
Zustand: gepflegt
Bei Abschluss eines Kaufvertrages wird eine Vermittlungs-/ Nachweisprovision in Höhe von 3,57 % inklusive 19 % Mehrwertsteuer auf den Kaufpreis vom Käufer fällig.
Die von uns gemachten Informationen beruhen auf Angaben des Verkäufers/der Verkäuferin bzw. des Eigentümers/der Eigentümerin. Für die Richtigkeit und Vollständigkeit der Angaben kann keine Gewähr bzw. Haftung übernommen werden. Ein Zwischenverkauf und Irrtümer sind vorbehalten.
Das könnte Ihnen auch gefallen
STOCKINGER IMMOBILIEN
Herr Matthias Stockinger
Im Weerberg5
54329 Konz
Mobil: +49 173 6252160
40764 Langenfeld (Rheinland)
















































